四、QJB型潛水攪拌機的結構:
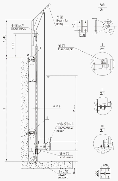
QJB型潛水攪拌機主要由潛水電機、密封機構、葉輪、導流罩、手搖葫蘆、電氣控制等部分構成。攪拌葉輪在電機驅動下旋轉攪拌液體,使之産生旋向射流,并利用沿着射流表面的剪切應力來進行混合,使流場以外的液體通過摩擦産生攪拌作用,在極度混合的同時,形成體積流,應用大體積流動模式得到受控流體的輸送。
潛水攪拌機結構圖:
五、QJB型潛水攪拌機特點:

1、QJB型潛水攪拌機結構緊湊、操作維護簡單、安裝檢修方便、使用壽命長。
2、QJB型潛水攪拌機葉輪具有最佳的水力設計結構,工作效率高,後掠式葉片具有自潔功能可防雜物纏繞、堵塞。
3、QJB型潛水攪拌機與曝氣系統混合使用可使能耗大幅度降低,充氧量明顯提高,有效防止沉澱。
4、QJB型潛水攪拌機電機繞組絕緣等級爲F級,防護等級爲IP68,選用進口軸承和獨有專利的電機防凝露裝置,使電機的工作更加安全可靠。
5、QJB型潛水攪拌機有兩道機械密封,材質爲碳化鎢-碳化鎢,所有外露緊固件均爲不鏽鋼。
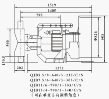
6、根據工藝要求,直聯式QJB型潛水攪拌機可配用導流罩。
7、QJB型潛水攪拌機的不鏽鋼、碳鋼精鑄焊接葉槳,經優化設計葉片呈後掠式,效率高,具有自潔功能。
8、QJB型潛水攪拌機内部設有洩漏傳感器和定子繞組超溫保護報警裝置。
9、混合攪拌系列産品選用多級電機,采用直聯式結構,能耗低,效率高;葉輪通過精鑄或沖壓成型,精度高,推力大,外型美觀流暢,結構緊湊。
六、QJB型潛水攪拌機用途及适用範圍:
混合攪拌系列潛水攪拌機适用于各種水處理。工藝和工業流程需要保持固、液二相或固、液、氣三相介質均勻混合反應的場所。QJB型潛水攪拌機
1、污水(廢水)/活性污泥的混合
2、控制濃縮污泥分離
3、酸、堿中和及PH值調整工藝
4、防止顆粒在池壁和池底的凝結和沉澱
5、提高傳熱系統的效率
潛水攪拌機在下列條件下應能正常連續運行:
1、最高介質溫度不超過40℃
2、介質的PH值在5-9
3、介質密度不超過115KG/M^3
4、長期潛水運行,潛水深度一般不超過20米
5、流速不低于0.15m/s
特别提示:
潛水攪拌機必須完全潛入水中工作,不能在易燃易爆和強腐蝕性及高溫的環境中工作。鋼膨脹螺栓須按要求固定,安
裝完畢後,必須将電纜拉緊固定好。
針對特殊環境下的要求,我公司可爲用戶提供特殊設計。
|