上海飛魯泵業科技有限公司專業生産銷售潛水攪拌機,潛水攪拌器,低速推流器,潛水排污泵,潛水曝氣機,潛水污泥回流泵,排污泵等環保設備

QJB-W型潛水污泥回流泵
 
潛水攪拌器系列産品
産品列表 QJB型潛水攪拌機
---------------------------------
産品列表 QDT型低速推流器
---------------------------------
産品列表 QXB型潛水離心式曝氣機
---------------------------------
産品列表

QJB-W型潛水污泥回流泵

---------------------------------
排污泵系列産品
産品列表 WQ型潛水無堵塞排污泵
---------------------------------
産品列表 QWP型不鏽鋼潛水排污泵
---------------------------------
産品列表 WQD型單相潛水排污泵
---------------------------------
産品列表 WQS型大流量排污泵
---------------------------------
産品列表 WQR型熱水耐高溫潛水排污泵
---------------------------------
産品列表 JYWQ型潛水自動攪勻排污泵
---------------------------------
産品列表 JPWQ型不鏽鋼自動攪勻排污泵
---------------------------------
産品列表 AS型切割式潛水排污泵
---------------------------------
産品列表 WQK型帶切割裝置排污泵
---------------------------------
産品列表 YW型立式無堵塞液下排污泵
---------------------------------
産品列表 ZW型無堵塞自吸式排污泵
---------------------------------
産品列表 LW型無堵塞直立式排污泵
---------------------------------
産品列表 PW型無堵塞卧式排污泵
---------------------------------
産品列表 PW型離心式排污泵
---------------------------------
産品列表 GW型管道式排污泵
---------------------------------
産品列表 NL型污水泥漿泵
---------------------------------
聯系我們
公司地址:上海市青浦區勝利路588号
銷售電話:021-51699925
公司傳真:021-60852131
公司網址:www.fl16.com
公司郵箱:chinafeilu@163.com

當前位置:首頁--潛水攪拌器系列産品--QJB-W型潛水污泥回流泵
QJB-W型潛水污泥回流泵


一、QJB-W型潛水污泥回流泵簡介:


QJB-W型潛水污泥回流泵爲二級污水處理廠混合液回流、反硝化脫氮的專用設備。亦可用于地面排水、灌溉和廢水處理過程中再

循環等需要微揚程、大流量的場所。

二、QJB-W型潛水污泥回流泵的使用條件:

1、連續運行時,介質溫度不高于40℃;

2、介質PH值爲6-9;

3、最大潛入深度10m。


三、QJB-W型潛水污泥回流泵的型号意義:


QJB-W型潛水污泥回流泵的型号意義


四、QJB-W型潛水污泥回流泵的結構特點:


1、按微揚程、大流量專門設計,效率高;

2、按抗堵塞、抗纏繞專門設計,使用可靠;

3、采用最新的密封材料,可以使泵安全連續運行10000小時以上;

4、結構緊湊,安裝、維修方便;

5、主機采用澆鑄成型結構,體積小、精度高、耐腐蝕、無噪音。


五、QJB-W型潛水污泥回流泵性能參數表:


QJB-W型潛水污泥回流泵性能參數表


六、QJB-W型潛水污泥回流泵的性能曲線圖:


QJB-W型潛水污泥回流泵的性能曲線圖

QJB-W型潛水污泥回流泵的性能曲線圖

QJB-W型潛水污泥回流泵的性能曲線圖


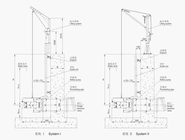
七、QJB-W型潛水污泥回流泵的安裝說明、安裝示意圖及安裝尺寸:


1、回流泵采用自動耦合安裝系統,在無需排水的狀況下,不用任何機械拆卸便可迅速提升,安裝方便快捷。

2、本設備除穿牆管需預埋外,導杆、起吊杆均用膨脹螺栓與池體連接,不需預埋件。

3、預埋件和拍門由用戶自行采購安裝,回流泵有水平安裝和垂直安裝兩種方式供用戶選擇。

QJB-W型潛水污泥回流泵的安裝示意圖
QJB-W型潛水污泥回流泵的安裝尺寸
其他潛水攪拌器系列産品推薦:

QJB型潛水攪拌機
QDT型低速推流器QXB型潛水離心式曝氣機

您可能感興趣的排污泵系列産品
LW型無堵塞直立式排污泵
PW型無堵塞卧式排污泵
PW型離心式排污泵
GW型管道式排污泵
新聞資訊
技術文獻
潛水排污泵該如何保養和維護? 潛水攪拌機是什麽?
潛水排污泵的結構特點有哪些? 潛水攪拌機選型需要考慮的事項
潛水排污泵不啓動的原因及解決方法 潛水攪拌機如何安裝
潛水排污泵定子燒壞是什麽原因?如何處理? 潛水攪拌機的操作保養注意事項
潛水排污泵流量不足或不出污水是什麽原因?如何處理? 潛水攪拌機在應用中注意事項
   
   
精品推薦:潛水攪拌機 | 潛水攪拌器 | 低速推流器 | 潛水排污泵 | JYWQ型潛水自動攪勻排污泵 | WQ型潛水無堵塞排污泵 | 排污泵
 
銷售熱線:+86-021-51699925  52699921     24小時咨詢熱線:400-021-5161      銷售傳真:+86-021-60852131       公司郵箱:chinafeilu@163.com
 
本網站所有圖片和資料均屬飛魯泵業科技所有,未經同意不得轉貼 網站備案号:滬ICP備11035286号-1